040 769 17 430
Container Anlagen – Gebrauchte Container

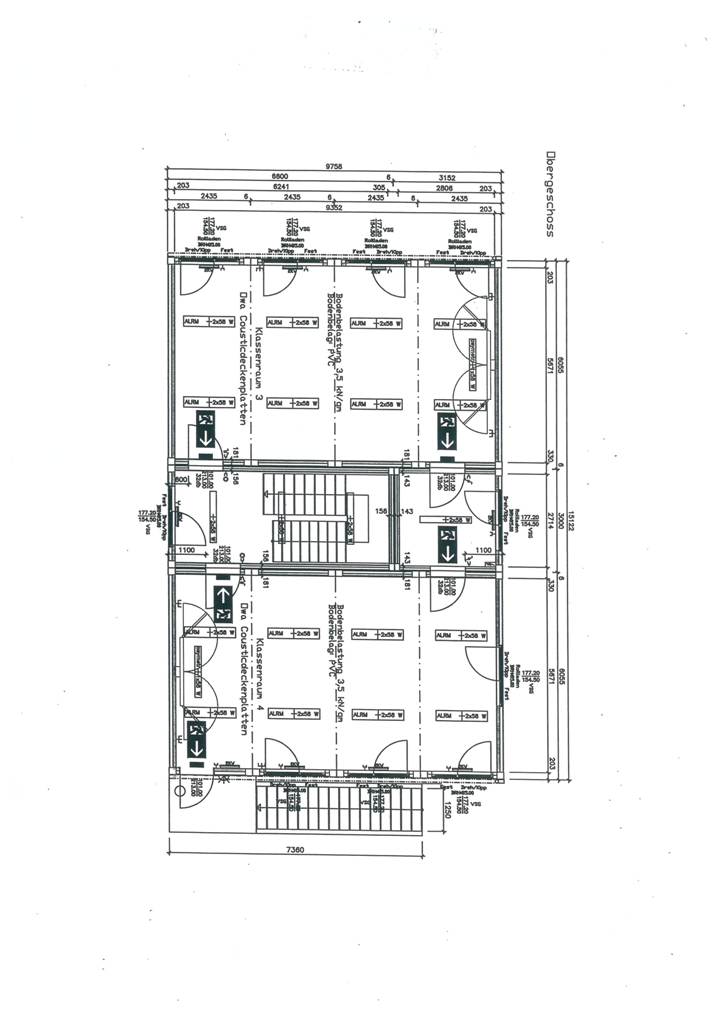
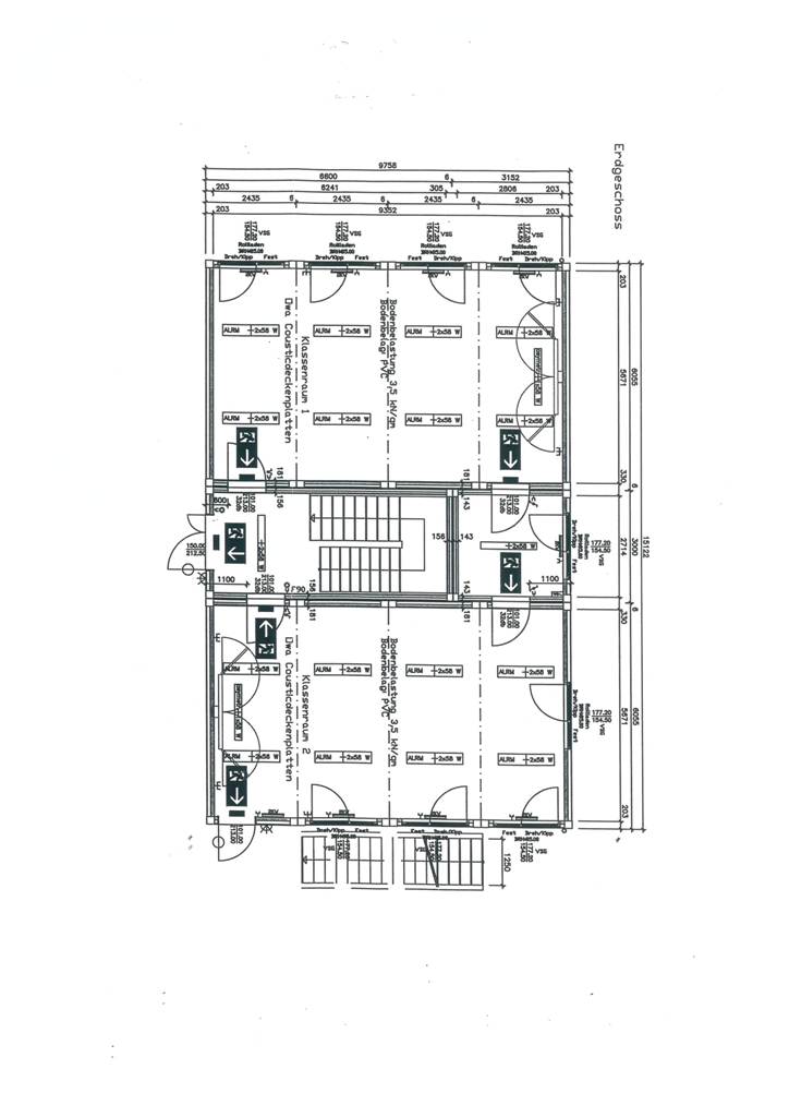
20er-Schulcontainer-, Kitacontainer- Bürocontaineranlage mit Innen- und Außentreppe BA229

20er-Schulcontainer-, Kitacontainer- Bürocontaineranlage mit Innen- und Außentreppe

 
Außenmaße ca.: 15.122 mm x Breite: 9.758 mm x Höhe: 2x 3.160 mm
Isoliert
Innenhöhe ca.: 2.75 m
3 Außentüren
19 Kunststoff Dreh- / Kippfenster mit Rollladen
4 große Räume
Deckenleuchten, Lichtschalter, Steckdosen, Sicherungskasten mit FI-Schutzschalter
Flur Teil mit Treppe
Elektrische Einspeisung: CEE-Außenwandstecker 230/400V - 32A

 

Aufpreis für elektrische Konvektorheizung: € 150,00 zzgl. MwSt. / Stück

Verkaufspreis auf Anfrage